Добро пожаловать на http://vipplan.ru

Випплан Чапаевск - это тысячи проектов домов в нашем каталоге!

Вы всегда сможете найти для себя проект дома вашей мечты! Даже если этого не случилось, мы готовы в любую минуту предложить проект индивидуального дома.

Забыли пароль?
Вы еще не регистрировались?

Перейдите по ссылке ниже на страницу регистрации.

Регистрация...

Внимание!!!

В проектную документацию могут быть внесены изменения любой сложности, в соответствии в Вашими пожеланиями!

Полезные статьи

Проекты быстровозводимых домов и коттеджей в Чапаевске

Некоторые люди до сих пор считают, что быстровозводимые дома представляют собой безликие, недолговечные, однотипные строения. Эти утверждения не соответствуют действительности. На данный момент, строительные технологии шагнули вперед и дома «быстрого приготовления» считаются эталоном комфорта, уюта и даже выделяются, в архитектурном плане, на фоне дорогих кирпичных коттеджей. Быстровозводимые дома не дорогие и изготавливаются в кратчайшие сроки....

Утепление стен дома изнутри

Утепление стен дома изнутри – это не правильный метод теплоизоляции помещения и используется в самом крайнем случае, когда других вариантов уже не остается. Как правило, утепление стен изнутри выполняется по незнанию или вынужденно, поскольку, теплоизоляция внутренних помещений дома другим способом невозможна. Вопросы теплоизоляции необходимо решать на стадии проектирования дома или коттеджа, а не тогда когда дом уже построен и приходится исправлять совершенные ошибки по факту....

Проекты домов и коттеджей > Каталог проектов домов > Двухэтажный коттедж для узкого участка Vg1299

Двухэтажный коттедж для узкого участка Vg1299

Двухэтажный коттедж для узкого участка
Зарегистрируйтесь

Проект № Vg1299


Техническое описание
Общая площадь: 217.19 м2
Жилая площадь: 142.13 м2
Высота здания: 7.75 м
Размеры дома: 9.04м×15.24м
Кол-во комнат: 7
Цокольный этаж: нет
Гараж: нет
Мансарда: нет

Kонструкция
Фундамент: Монолитная плита
Перекрытия: Сборные плиты
Материал стен: Опалубка

Архитектурный раздел
Конструктивный раздел
АР+КР - 64 000 (Со скидкой 20%)
Проект индивидуального двухэтажного жилого дома с размерами 9,04 x 15,24 м. Наружная отделка здания – фасадная штукатурка Цоколь – искусственный камень Фундамент – плита под всей площадью дома Наружные стены запроектированы из: несъемной опалубки Внутренние стены и перегородки: из несъемной опалубки Перекрытие межэтажное – сборные плиты перекрытия Крыша - плоская. Материал кровли – натуральная черепица Окна - металлопластиковые, выполненные по индивидуальному заказу.
Генплан застройки участка / Паспорт проекта 7000 руб / 10000 руб
Инженерный раздел (полный) 108500 руб
Смета на строительство 54250 руб
Теплотехнический расчет материалов стен Бесплатно
Стоимость проекта со незначительнми изменениями 74550 руб
Стоимость проекта со средними изменениями* 90900 руб
Стоимость проекта со значительными изменениями** 95200 руб

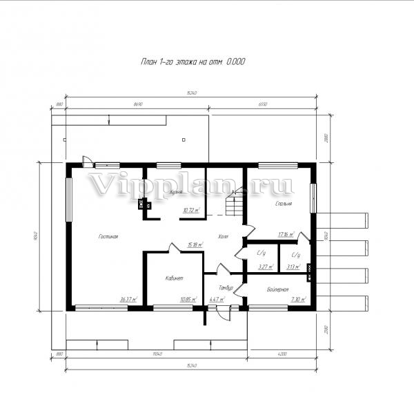
План первого этажа


Тамбур — 4,47 кв м
Холл — 15,18 кв м
Гостиная — 36,37 кв м
Кухня — 10,72 кв м
Кабинет — 10,85 кв м
Спальня — 17,16 кв м
С/у — 3,27 кв м
С/у — 3,13 кв м
Бойлерная — 7,30 кв м

Двухэтажный коттедж для узкого участка

Двухэтажный коттедж для узкого участка

План второго этажа


Холл — 8,78 кв м
Гардероб — 5,27 С/у — 7,63 кв м
Спальня — 22,53 кв м
С/у — 5,98 кв м
Гладильная — 3,34 кв м
Спальня — 18,20 кв м
Спальня — 19,86 кв м
Спальня — 17,16 кв м
Двухэтажный коттедж для узкого участка Двухэтажный коттедж для узкого участка Двухэтажный коттедж для узкого участка Двухэтажный коттедж для узкого участка

Модификации проектов

Внесение изменений и привязка к участку строительства

В любой из проектов от компании VIPplan - Чапаевск по вашему желанию могут быть внесены изменения в материалы стен, материалы наружной отделки дома, а также будет произведена адаптация проекта под конкретный регион строительства (с учетом грунтов региона, геологических особенностей вашего участка и местных климатических условий) - БЕСПЛАТНО !!! (кроме проектов со скидкой и проектов наших партнеров).

Любой из проектов, размещенных на сайте chapaevsk.vipplan.ru мы можем выполнить из требуемых вам строительных материалов: ячеистый бетон (газобетон, пеноблок), керамоблок, кирпич, шлакоблок, бетонный блок, дерево (брус, клееный брус), каркасная технология (деревянный каркас, металлокаркас (ЛСТК)).

Фасад дома и его наружную отделку так же возможно выполнить с применением различных облицовочных материалов: структурной штукатурки, (с утеплителем и без), сайдингом (пластиковый или металлосайдинг), фиброплитами, кирпича.

 
6 Избранные
проекты

Доставка проектов по России: Москва (Московская область), Санкт-Петербург (Ленинградская область), Краснодар, Ростов-на-Дону, Ставрополь, Сочи, Волгоград, Новосибирск, Белгород, Брянск, Воронеж, Саратов, Хабаровск, Астрахань, Нальчик, Владикавказ, Екатеринбург, Тюмень, Самара, Нижний Новгород, Казань, Пермь, Уфа, Челябинск, Красноярск, Ханты-Мансийск, Иркутск, Курган, Оренбург, Омск, Томск, Барнаул, Новокузнецк, Кемерово, Абакан, Чита, Якутск, Южно-Сахалинск, Петропавловск-Камчатский и страны ближнего зарубежья: Белоруссия, Украина, Казахстан