Добро пожаловать на http://vipplan.ru

Випплан Чапаевск - это тысячи проектов домов в нашем каталоге!

Вы всегда сможете найти для себя проект дома вашей мечты! Даже если этого не случилось, мы готовы в любую минуту предложить проект индивидуального дома.

Забыли пароль?
Вы еще не регистрировались?

Перейдите по ссылке ниже на страницу регистрации.

Регистрация...

Внимание!!!

В проектную документацию могут быть внесены изменения любой сложности, в соответствии в Вашими пожеланиями!

Полезные статьи

Плиты перекрытий

Железобетонные плиты очень широко используются в строительстве. При помощи них возводят как промышленные объекты так жилые. Железобетонные плиты перекрытия являются главной частью любого строительного объекта вне зависимости от этажности....

Приготовление раствора для наливного пола

Если вы хотите чтобы пол получился ровным, наливные полы – лучший вариант. Особое внимание следует уделить приготовлению раствора. А все потому, что после нанесения на цементную стяжку или бетонное основание внести коррективы или изменить что-либо уже не получится. Поэтому к замешиванию раствора стоит подходить очень внимательно....

Проекты домов и коттеджей > Каталог проектов домов > Дом с мансардой, гаражом, террасой и балконами Vg1101

Дом с мансардой, гаражом, террасой и балконами Vg1101

Дом с мансардой, гаражом, террасой и балконами
Зарегистрируйтесь

Проект № Vg1101


Техническое описание
Общая площадь: 179.71 м2
Жилая площадь: 95.9 м2
Высота здания: 9.03 м
Размеры дома: 12.81м×15.1м
Кол-во комнат: 5
Цокольный этаж: нет
Гараж: нет
Мансарда: есть

Kонструкция
Фундамент: Буронабивной
Перекрытия: Деревянные
Материал стен: Газобетон

Архитектурный раздел
Конструктивный раздел
АР+КР - 60 000 (Со скидкой 20%)
Проект индивидуального одноэтажного одноквартирного жилого дома с мансардой с размерами здания 12,81 x 15,10 м. Наружная отделка здания - фасадная штукатурка и деревянные панели. Фундамент - буронабивной, (свайно-ростверковый). Наружные стены - газосиликатные блоки, утеплитель - экструдированный пенополистирол с отделкой фасадной щтукатуркой и деревянными панелями Внутренние стены - газосиликатные блоки Перегородки выполняются из газосиликатных блоков. Снаружи вентканалы и дымоходы оштукатуриваются. Перемычки - монолитные и сварные из профиля проката. Перекрытие над первым этажом – деревянные балки. Пол первого этажа - пол по грунту. Крыша - многоскатная. Материал кровли - гибкая кровля. Окна - металлопластиковые, выполненные по индивидуальному заказу.
Генплан застройки участка / Паспорт проекта 7000 руб / 10000 руб
Инженерный раздел (полный) 90000 руб
Смета на строительство 45000 руб
Теплотехнический расчет материалов стен Бесплатно
Стоимость проекта со незначительнми изменениями 70500 руб
Стоимость проекта со средними изменениями* 84000 руб
Стоимость проекта со значительными изменениями** 87600 руб

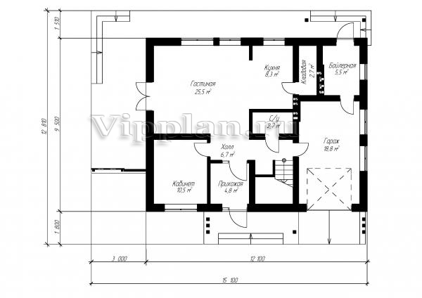
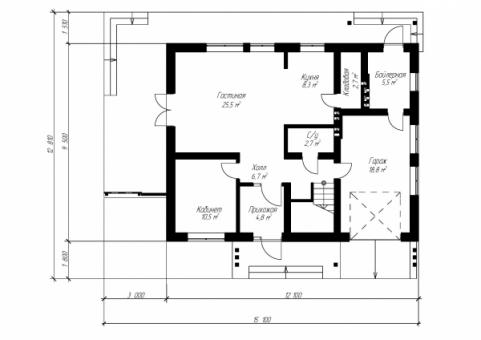
План первого этажа


Гараж — 18,8 кв м
Гостиная — 25,5 кв м
Кухня — 8,3 кв м
Холл — 6,7 кв м
Прихожая — 4,8 кв м
Кабинет — 10,5 кв м
С/у — 2,7 кв м
Кладовая — 2,7 кв м
Бойлерная — 5,5 кв м

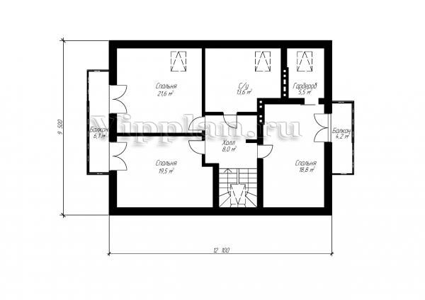
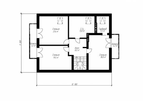
План мансардного этажа


Балкон — 6,1 кв м
Спальня — 21,6 кв м
С/у — 13,6 кв м
Гардероб — 5,5 кв м
Спальня — 18,8 кв м
Холл — 8,0 кв м
Спальня — 19,5 кв м
Балкон — 4,2 кв м
Дом с мансардой, гаражом, террасой и балконами Дом с мансардой, гаражом, террасой и балконами Дом с мансардой, гаражом, террасой и балконами Дом с мансардой, гаражом, террасой и балконами

Модификации проектов

Внесение изменений и привязка к участку строительства

В любой из проектов от компании VIPplan - Чапаевск по вашему желанию могут быть внесены изменения в материалы стен, материалы наружной отделки дома, а также будет произведена адаптация проекта под конкретный регион строительства (с учетом грунтов региона, геологических особенностей вашего участка и местных климатических условий) - БЕСПЛАТНО !!! (кроме проектов со скидкой и проектов наших партнеров).

Любой из проектов, размещенных на сайте chapaevsk.vipplan.ru мы можем выполнить из требуемых вам строительных материалов: ячеистый бетон (газобетон, пеноблок), керамоблок, кирпич, шлакоблок, бетонный блок, дерево (брус, клееный брус), каркасная технология (деревянный каркас, металлокаркас (ЛСТК)).

Фасад дома и его наружную отделку так же возможно выполнить с применением различных облицовочных материалов: структурной штукатурки, (с утеплителем и без), сайдингом (пластиковый или металлосайдинг), фиброплитами, кирпича.

 
6 Избранные
проекты

Доставка проектов по России: Москва (Московская область), Санкт-Петербург (Ленинградская область), Краснодар, Ростов-на-Дону, Ставрополь, Сочи, Волгоград, Новосибирск, Белгород, Брянск, Воронеж, Саратов, Хабаровск, Астрахань, Нальчик, Владикавказ, Екатеринбург, Тюмень, Самара, Нижний Новгород, Казань, Пермь, Уфа, Челябинск, Красноярск, Ханты-Мансийск, Иркутск, Курган, Оренбург, Омск, Томск, Барнаул, Новокузнецк, Кемерово, Абакан, Чита, Якутск, Южно-Сахалинск, Петропавловск-Камчатский и страны ближнего зарубежья: Белоруссия, Украина, Казахстан