Добро пожаловать на http://vipplan.ru

Випплан Чапаевск - это тысячи проектов домов в нашем каталоге!

Вы всегда сможете найти для себя проект дома вашей мечты! Даже если этого не случилось, мы готовы в любую минуту предложить проект индивидуального дома.

Забыли пароль?
Вы еще не регистрировались?

Перейдите по ссылке ниже на страницу регистрации.

Регистрация...

Внимание!!!

В проектную документацию могут быть внесены изменения любой сложности, в соответствии в Вашими пожеланиями!

Полезные статьи

Купить готовый проект дома или заказать индивидуальный?

Перед началом строительства дома возникает необходимость в проекте дома и тут встает вопрос: Купить готовый проект дома или заказать индивидуальный на заказ? Каждый из вариантов по своему хорош и имеет как свои плюсы так и минусы...

Выбор проекта дома в Чапаевске. Типовой или индивидуальный?

Строительство дома начинается с выбора проекта. От него будет зависит удобство, комфорт и функциональность Вашего будущего дома. Какой проект выбрать? В каталоге проектов домов VIPplan Чапаевск предоставлен огромный выбор проектов на любой вкус и кошелек. В итоге выбор сводится к покупке типового проекта дома или заказа индивидуального проекта. Для упращения задачи, расскажем о каждом варианте по отдельности...

Проекты домов и коттеджей > Каталог проектов домов > Проект дома из керамзитобетона Vg1052

Проект дома из керамзитобетона Vg1052

Проект дома из керамзитобетона
Зарегистрируйтесь

Проект № Vg1052


Техническое описание
Общая площадь: 273.52 м2
Жилая площадь: 107.4 м2
Высота здания: 9.4 м
Размеры дома: 9.1м×12.3м
Кол-во комнат: 4
Цокольный этаж: есть
Гараж: нет
Мансарда: есть

Kонструкция
Фундамент: Блоки ФБС на монолитной плите
Перекрытия: Ж/б плиты
Материал стен: Бетонные блоки

Архитектурный раздел
Конструктивный раздел
АР+КР - 72 000 (Со скидкой 20%)
Проект индивидуального двухэтажного жилого дома с размерами здания 9,10 x 12,30 м. Наружная отделка здания – фасадная штукатурка, клинкерная плитка. Фундамент – блоки ФБС на монолитной плите. Наружные стены – из керамзитобетона, утеплителя - экструдированный пенополистирол с фасадной штукатуркой и клинкерной плиткой. Внутренние стены - из керамзитобетонного блока. Перегородки – из рядового кирпича. Пол подвала - пол по плите. Межэтажное перекрытие-ж/б плиты перекрытия. Крыша многоскатная. Кровля – металлочерепица. Окна — металлопластиковые
Генплан застройки участка / Паспорт проекта 7000 руб / 10000 руб
Инженерный раздел (полный) 137000 руб
Смета на строительство 68500 руб
Теплотехнический расчет материалов стен Бесплатно
Стоимость проекта со незначительнми изменениями 83150 руб
Стоимость проекта со средними изменениями* 103700 руб
Стоимость проекта со значительными изменениями** 109200 руб

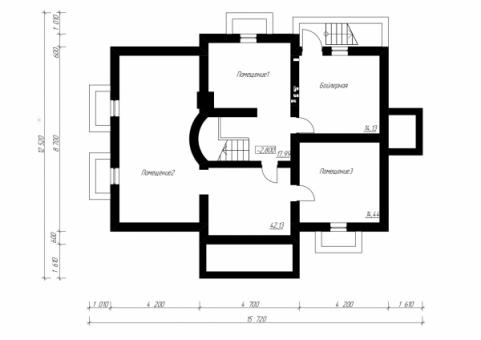
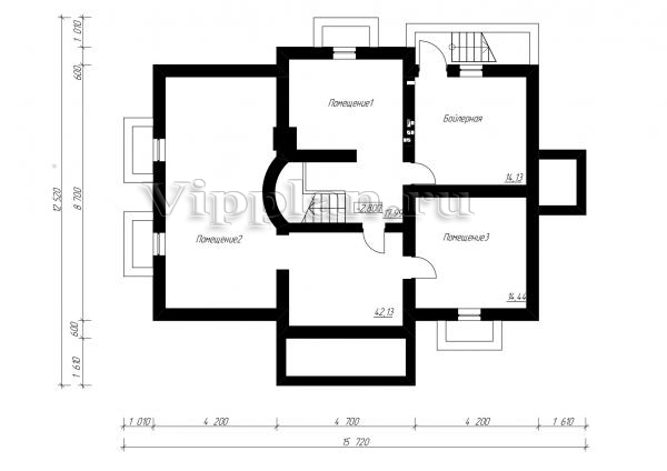
План цокольного этажа


Помещение 1 — 17,99 м2
Помещение 2 — 42,13 м2
Помещение 3 — 14,44 м2
Бойлерная — 14,13 м2

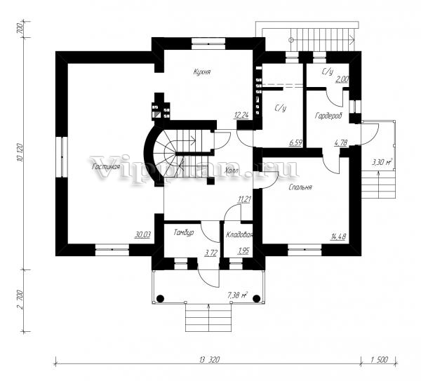
План первого этажа


Тамбур — 3,72 м2
Кладовая — 1,95 м2
Холл — 11,21 м2
Гостиная — 30,03 м2
Кухня — 12,24 м2
Спальня — 14,48 м2
С/у — 6,59 м2
С/у — 2 м2
Гардероб — 4,78 м2

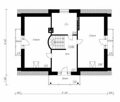
План мансардного этажа


Холл — 17,57 м2
Спальня — 31,21 м2
С/у — 12,94 м2
Спальня — 31,68 м2
Балкон — 3,70 м2
Балкон — 3,70 м2
Балкон — 7,40 м2
Проект дома из керамзитобетона Проект дома из керамзитобетона Проект дома из керамзитобетона Проект дома из керамзитобетона
Внесение изменений и привязка к участку строительства

В любой из проектов от компании VIPplan - Чапаевск по вашему желанию могут быть внесены изменения в материалы стен, материалы наружной отделки дома, а также будет произведена адаптация проекта под конкретный регион строительства (с учетом грунтов региона, геологических особенностей вашего участка и местных климатических условий) - БЕСПЛАТНО !!! (кроме проектов со скидкой и проектов наших партнеров).

Любой из проектов, размещенных на сайте chapaevsk.vipplan.ru мы можем выполнить из требуемых вам строительных материалов: ячеистый бетон (газобетон, пеноблок), керамоблок, кирпич, шлакоблок, бетонный блок, дерево (брус, клееный брус), каркасная технология (деревянный каркас, металлокаркас (ЛСТК)).

Фасад дома и его наружную отделку так же возможно выполнить с применением различных облицовочных материалов: структурной штукатурки, (с утеплителем и без), сайдингом (пластиковый или металлосайдинг), фиброплитами, кирпича.

 
6 Избранные
проекты

Доставка проектов по России: Москва (Московская область), Санкт-Петербург (Ленинградская область), Краснодар, Ростов-на-Дону, Ставрополь, Сочи, Волгоград, Новосибирск, Белгород, Брянск, Воронеж, Саратов, Хабаровск, Астрахань, Нальчик, Владикавказ, Екатеринбург, Тюмень, Самара, Нижний Новгород, Казань, Пермь, Уфа, Челябинск, Красноярск, Ханты-Мансийск, Иркутск, Курган, Оренбург, Омск, Томск, Барнаул, Новокузнецк, Кемерово, Абакан, Чита, Якутск, Южно-Сахалинск, Петропавловск-Камчатский и страны ближнего зарубежья: Белоруссия, Украина, Казахстан